Wild
Summer 2018 - Scenic Design

Project
When a young boy runs away on an adventure through the unknown, he meets a whole host of unusual characters — and he learns what love, family, and home are all about.
Production Team
Created by Atlas Circus Company
Directors - Noah Dach & Stoph Scheer
Lighting - Paul E. Theisen, Jr.
Costumes - Lex Gurst
Production Photos
Production Photos by Ken Ek
Process
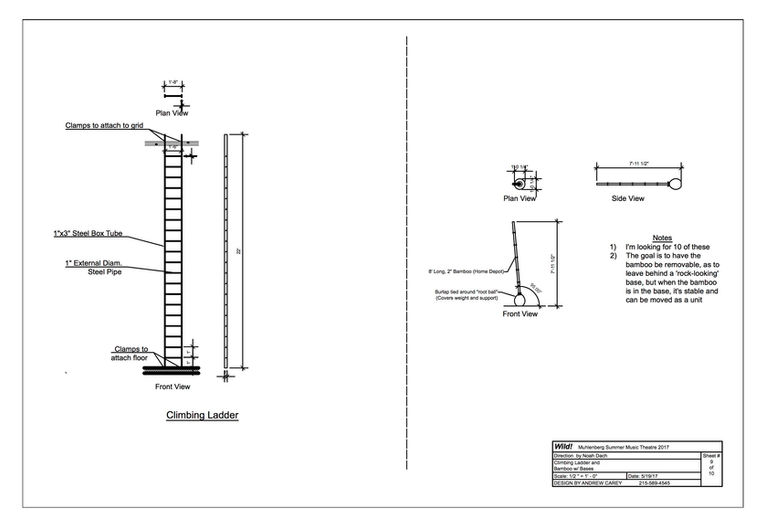
I designed and helped fabricate a jungle environment for this circus production. Using hand sketches and SketchUp, I developed preliminary design concepts. I created design drawings in AutoCAD for the technical director and coordinated with the rigging and safety team to finalize the aerial counter-weight climbing ladder design. After these discussion I drafted drawings for use by a subcontractor to manufacture the ladders. I lead a crew that painted all scenic elements, including the floor which needed to remain flat and clear of obstructions for performer safety but still have a jungle ambiance.











